Welcome
CV
Design Work
Techniques in Ambiguity - Thesis
Concrete Context
Professional Graphics
3D Printing
Ceramic Studies
Robotic Research
Documentation
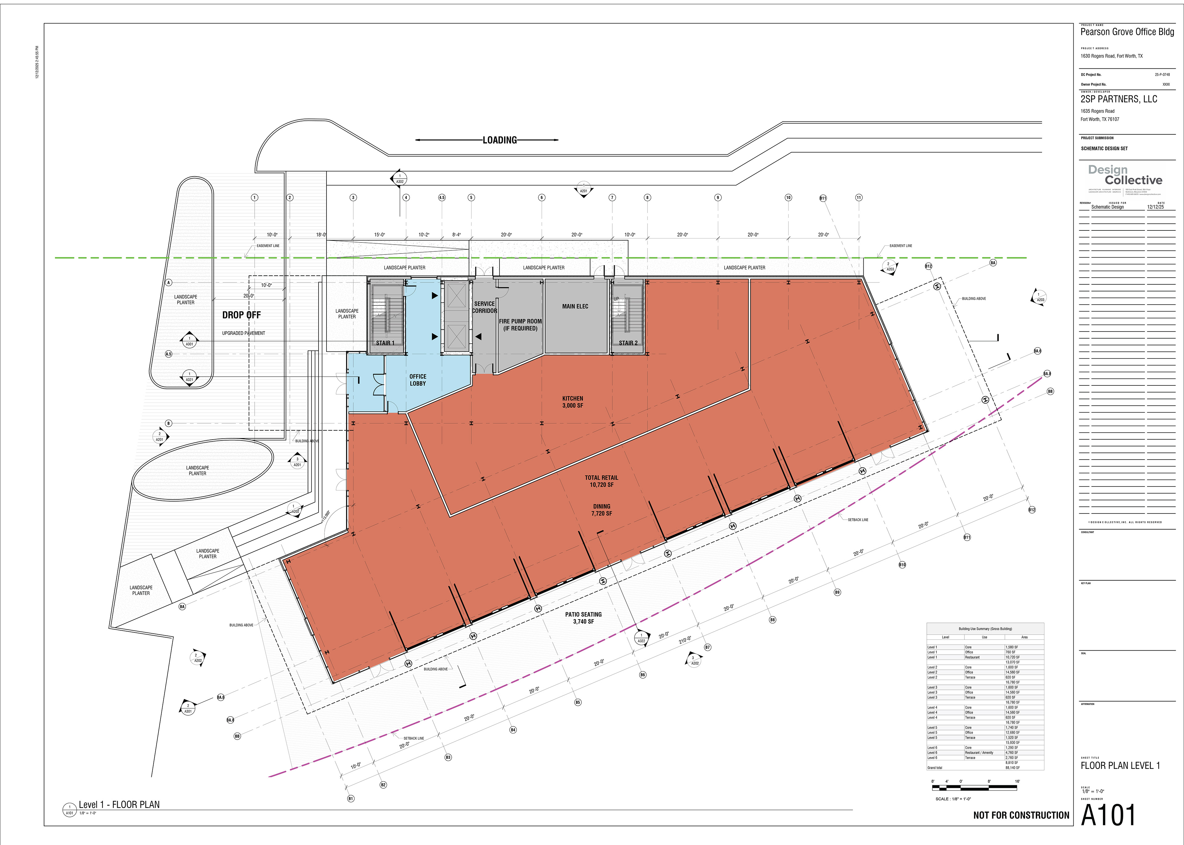
Pearson Grove Office
Meritus Health Student Housing
University of Idaho Student Housing
World of Wonders Daycare Renovation
Franklinton Cycle Works Renovation
UCH Chapel Hill Renovation
Shekinah Christian School Addition & Renovation
Contact
Ally Hutchison
Welcome
CV
Design Work
Techniques in Ambiguity - Thesis
Concrete Context
Professional Graphics
3D Printing
Ceramic Studies
Robotic Research
Documentation
Pearson Grove Office
Meritus Health Student Housing
University of Idaho Student Housing
World of Wonders Daycare Renovation
Franklinton Cycle Works Renovation
UCH Chapel Hill Renovation
Shekinah Christian School Addition & Renovation
Contact
Pearson Grove Office
Contribution: 3D modeling, life safety plans & code analysis, floor plans, building sections, elevations, assemblies, wall sections, material selection & rep coordination, solar analysis, renderings, client presentations, consultant coordination
↑
Back to Top